Casa individuala premium Bavaria SB 129 mp utili incalzire pardoseala

  • De vanzare
  • Sibiu - Daia - Centrul Istoric

129000 €

  • Casa
  • Suprafara Utila: 129 mp2

Descriere ID: vision-467

Comision 0!
Vă propunem spre vânzare o locuință individuală situată în cartierul rezidențial Bavaria, una dintre cele mai aerisite și moderne zone de extensie a Sibiului. Proprietatea este poziționată strategic la doar 3 km de ieșirea din oraș, oferind un echilibru perfect între liniștea oferită de peisajul montan și accesul rapid către centrul Sibiului, autostrada A1 și zonele comerciale.
Detalii Tehnice și Compartimentare:
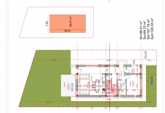
• Casa dispune de o suprafață utilă generoasă de 129 mp, fiind proiectată pentru a asigura confortul optim unei familii moderne. Compartimentarea este inteligentă și funcțională:
• Zona de zi: Living spațios unit cu bucătăria, oferind un spațiu deschis și luminos, cu acces direct pe terasa exterioară.
• Zona de noapte: 3 dormitoare decomandate, concepute pentru intimitate și relaxare.
• Băi: 2 băi spațioase, finisate la stadiul de alb.
• Terasă: O terasă exterioară de 20 mp utili, ideală pentru petrecerea timpului liber.
Stadiul de Predare și Dotări
Proprietatea se află în construcție și se va preda la data de 15 septembrie 2026, existând posibilitatea achiziționării în mai multe stadii de finisare:
Varianta 1 – La Roșu Exterior Închis – 129.000 Euro
• Structură finalizată
• Acoperiș complet realizat
• Tâmplărie PVC montată
• Geamuri termopan și uși exterioare incluse
Varianta 2 – Exterior La Cheie + Interior la Stadiul Alb – 185.000 Euro
Interior:
• Pereți tencuiți și finisați cu tinci
• Instalație electrică și sanitară completă
• Centrală termică proprie
• Sistem de încălzire în pardoseală
Exterior:
• Izolație exterioară cu polistiren de 15 cm
• Fațadă finisată cu tencuială decorativă
• Tâmplărie PVC de înaltă calitate cu geam termopan 3 foi de sticlă, 7 camere și 2 chedere de etanșare
• Curte amenajată
• Zonă pavată pentru acces auto și pietonal
• Spațiu verde pregătit pentru însămânțare
• Gard perimetral cu fundație din beton și închideri moderne
Varianta 3 – Complet La Cheie – 225.000 Euro
• Proprietatea se predă complet finisată, atât la interior cât și la exterior, cu materiale premium și posibilitatea personalizării finisajelor în funcție de preferințele cumpărătorului.
Utilități:
Casa se predă complet racordată la toate rețelele de utilități publice:
• Gaz metan
• Energie electrică
• Apă curentă
• Canalizare
Modalități de Plată:
• Avans minim 30%
De ce să alegi această proprietate în Bavaria?
Zona Bavaria este recunoscută pentru infrastructura nouă, drumurile asfaltate și comunitatea tânără. Fiind o zonă exclusiv de case, regimul de înălțime este controlat, oferind o vedere panoramică superbă și un nivel scăzut de poluare fonică față de aglomerația urbană.
Izolația exterioară de 15 cm, tâmplăria performantă și încălzirea în pardoseală transformă această proprietate într-o investiție excelentă pe termen lung, atât din punct de vedere al confortului, cât și al eficienței energetice.

Detalii Proprietate

  • Suprafata Construita: 172 m2

  • Suprafata Utila: 129 m2

  • Camere: 4

  • Dormitoare: 4

  • Bai: 2

  • Loc Parcare: 2

  • An Constructie: 2026

  • Front Stradal: 12 m2

  • Suprafata teren: 330 m2

  • Terasa: 1

Utilitati

Finisaje

Izolatii termice
Ferestre cu geam termopan
Usa intrare
Dotari

Alte spatii utile
Mobilat

Locatie Sibiu - Daia - Centrul Istoric

Proprietati Similare

Casa

Casa noua mobilata modern 5 camere, 476 mp teren-Cisnadie, Comision 0

Sibiu - Cisnadie - Centrul Istoric

  • Camere: 5
  • Bai: 2

Casa

Afacere la cheie: Cămin bătrâni 1143mp, Jacuzzi, Saună, 0% Comision

Sibiu - Slimnic - Centrul Istoric

  • Camere: 24
  • Bai: 10

Casa

Casa 7 camere + pod locuibil, centrul Sibiu, afacere la cheie

Sibiu - Sibiu - Central

  • Camere: 7
  • Bai: 6

Casa

Casa moderna cu teren generos in Pauca – aer curat, viata linistita

Sibiu - Pauca - Centrul Istoric

  • Camere: 3
  • Bai: 2